'Moradia T4 no Centro da Foz do Arelho- Perto da Praia e comércio

330 000€

  • 4
  • 4
  • 2
  • Útil: 155m2
  • Bruta: 155m2
  • C.E.: B
  • Ano: 2011
  • Orientação Solar: Sul
  • Ref: 66722-TEAM60737

Localização

Leiria, Caldas da Rainha, Foz do Arelho, Centro

Descrição

Moradia T4 no centro da Foz do Arelho – Excelente localização e exposição solar

Moradia T4 usada, situada no coração da Foz do Arelho, a poucos minutos da praia e de todos os serviços essenciais. Esta moradia oferece uma combinação ideal entre conforto, localização privilegiada e agradáveis espaços exteriores.

O rés do chão dispõe de um pequeno logradouro, perfeito para momentos de lazer ao ar livre, arrumos ou zona de convívio. No primeiro andar, encontra-se uma varanda soalheira, bem como um pequeno terraço que permite disfrutar de privacidade e de um ambiente tranquilo.

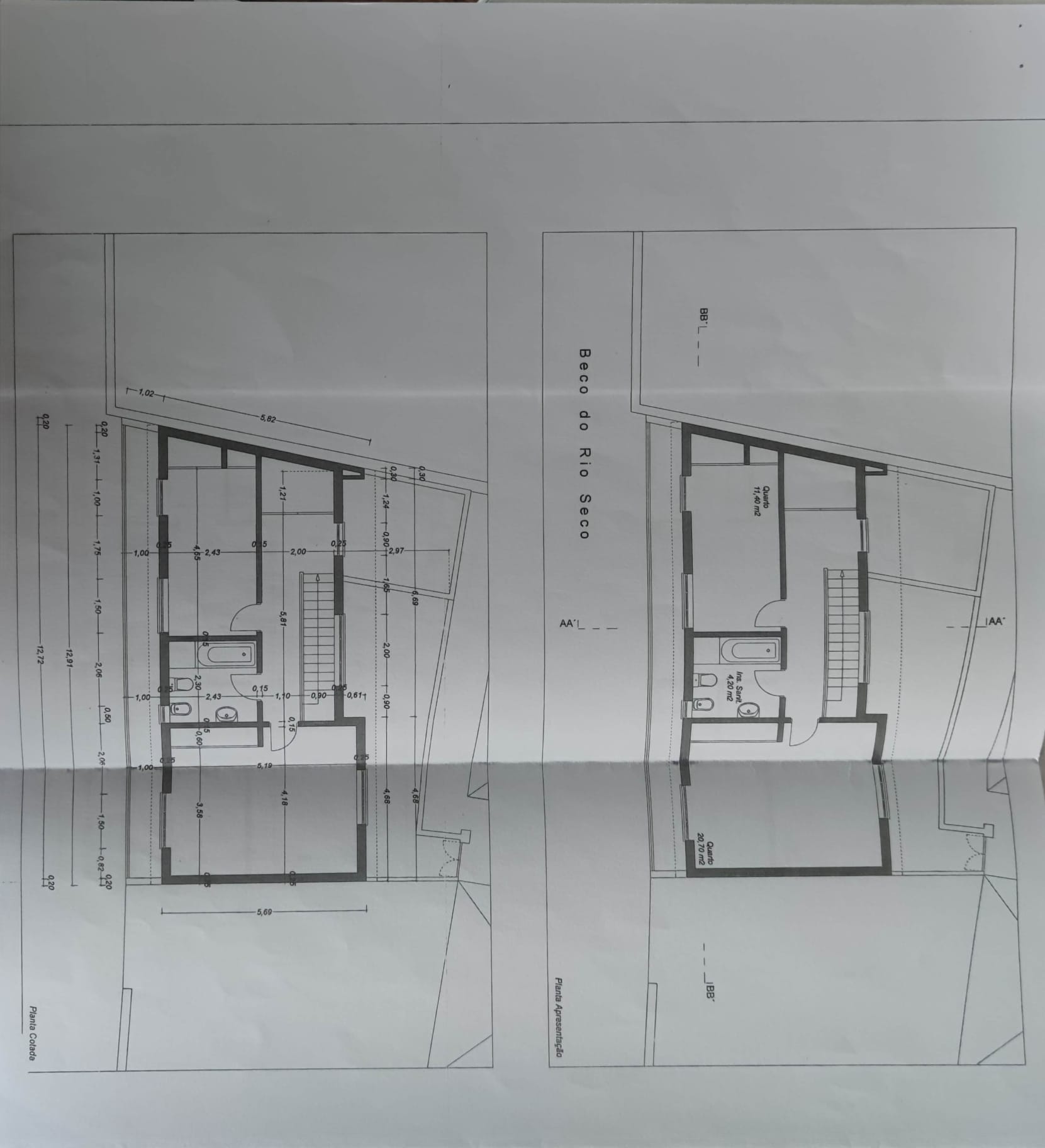
A casa apresenta uma boa distribuição das divisões, com 4 quartos com boas dimensões, sendo dois deles no rés do chão e uma casa de banho completa , 2 quartos no primeiro andar com roupeiros embutidos, e casa de banho completa, áreas sociais luminosas e potencial para personalização ao gosto do novo proprietário.

Ideal para residência permanente, casa de férias ou investimento.
Agende já a sua visita e não perca esta oportunidade

Atributos

  • Janelas vidro duplo
  • Máquina lavar loiça
  • Terraço
  • Cozinha Equipada
  • Máquina lavar roupa
  • Varanda
  • Painéis Solares
  • Jardim
  • Água Canalizada
  • Saneamento
  • Local sossegado
  • Trânsito de Acesso Fácil
  • Boa Exposição Solar
  • Roupeiro embutido

Divisões

Plantas

Nome do piso: Piso 0

Divisão Área Nota
Quarto
Quarto
Cozinha
WC
Open Space
Jardim Pequno traseiras
Hall de Entrada

Nome do piso: Piso 1

Divisão Área Nota
Quarto
Quarto
WC
Varanda
Terraço